Эпопея с системой охлаждения!
О замене бачка писал, опишу проблему подробнее, возможно кому-то пригодится.
Из бачка стал уходить антифриз, видимых потёков не было, я напрягся и стал наблюдать.
Смотрел на уровень в бачке после ночной стоянки, система ж должна остыть, давление выровняться. Во время пуска двигателя смотрел на выхлопные газы. Почитал статьи про систему охлаждения, все пишут про прогоревшие прокладки, в общем жуть. Продолжалось это несколько месяцев. Антифриз периодически уходил, а я его подливал. Однажды поднял капот сразу после поездки по городу и вижу блестит коса проводов, которая проходит примерно под бачком. Трогаю её пальцем — палец красный. Думаю вот оно. Начинаю лазить искать. Включил фронтальную камеру на телефоне и засунул телефон под бачок, а там висит капля и дренажная трубка мокрая.
Всё вытер, выровнял уровень в бачке и стал ждать. А антифриз не уходит.
В итоге моих наблюдений оказалось, что на самом дне бачка, в самой его нижней точке, похоже образовалась микротрещина. При езде по городу, когда система охлаждения максимально разогревалась и создавалось максимально высокое давление, бачок начинал течь. Но тёк не сильно, поэтому до утра в подкапотном всё высыхало.
При этом автомобиль 2017 года, какого хрена бачок треснул непонятно.
Поставил новый бачок, заменил на нём крышку, и уже как порядка 2000 км этой проблемы нет. Но фобия осталась и литр антифриза всегда лежит в багажнике.
Всем добра и крепких бачков!
На чтение 5 мин Просмотров 2.5к.
Рассмотрим подробнее
- Техническое описание и расшифровка ошибки P2767
- Симптомы неисправности
- Причины возникновения ошибки
- Как устранить или сбросить код неисправности P2767
- Диагностика и решение проблем
- На каких автомобилях чаще встречается данная проблема
- Видео
Код ошибки P2767 звучит как «нет сигнала цепи датчика «B» скорости вращения турбины (гидротрансформатора)». Часто, в программах, работающих со сканером OBD-2, название может иметь английское написание «Input/Turbine Speed Sensor «B» Circuit No Signal».
Техническое описание и расшифровка ошибки P2767
Этот диагностический код неисправности (DTC) является общим кодом силового агрегата. Ошибка P2767 считается общим кодом, поскольку применяется ко всем маркам и моделям транспортных средств. Хотя конкретные этапы ремонта могут несколько отличаться в зависимости от модели.
Код неисправности P2767 отображается, когда модуль управления трансмиссией (PCM) обнаруживает неисправность в цепи для турбинного датчика скорости, известного как «B». Обозначение «B» обычно зарезервировано для транспортных средств, оборудованных OBD-II, которые используют несколько датчиков скорости входа или турбины.
Входной датчик скорости турбины обычно представляет собой электромагнитный трехпроводной датчик. Используемый для контроля входной скорости передачи (распознается PCM как обороты в минуту).
Датчик расположен рядом с задней частью гидротрансформатора (на входном валу трансмиссии). Устанавливается либо с помощью болта, либо ввинчивается непосредственно в картер трансмиссии.
На главном валу трансмиссии имеются специальные канавки, которые проходят в непосредственной близости от конца датчика. Когда канавки проходят мимо датчика, цепь прерывается, и формируется электронный импульс. Этот импульс, принимается PCM как шаблон формы волны, который он опознает как входной сигнал скорость турбины.
Входная скорость турбины сравнивается со скоростью вращения двигателя, процентной нагрузкой двигателя и выходной скоростью трансмиссии. Делается это для определения желаемой входной скорости об/мин. Если фактическая скорость не совпадает с желаемой скоростью, код P2767 будет сохранен, и загорится лампа неисправности «Check engine».
Симптомы неисправности
Основным симптомом появления ошибки P2767 для водителя является подсветка MIL (индикатор неисправности). Также его называют Check engine или просто «горит чек».
Также они могут проявляться как:
- Загорится контрольная лампа «Check engine» на панели управления (код будет записан в память ECM как неисправность).
- Колебания показаний спидометра или одометра.
- Жесткое или неустойчивое переключение передач.
- Отказ АКПП переключиться.
- Повышенный расход топлива.
- Плавающие обороты двигателя, а также попытки заглохнуть.
- Глохнущий двигатель на холостом ходу.
- Возможны пропуски зажигания в цилиндрах двигателя. Также двигатель автомобиля может работать неустойчиво.
В некоторых случаях, когда присутствует этот код, PCM переводит коробку в «аварийный режим работы». В этом режиме трансмиссия начинает работать с ограничениями. Если при сообщении P2767 АКПП начинает переключаться нерегулярно, проблему с ошибкой следует немедленно устранить.
Причины возникновения ошибки
Код P2767 может означать, что произошла одна или несколько следующих проблем:
- Поврежденная проводка или разъемы.
- Неисправный датчик входной скорости.
- Неисправность датчика выходной скорости.
- Неисправность электромагнитного клапана переключения передач.
- Загрязнение трансмиссионной жидкости ATF.
- Низкий уровень трансмиссионной жидкости.
- Сбой PCM или ошибка программирования PCM.
Как устранить или сбросить код неисправности P2767
Некоторые предлагаемые шаги для устранения неполадок и исправления кода ошибки P2767:
- Подключите сканер OBD-II к автомобилю и считайте все присутствующие коды ошибок.
- Очистите коды и проведите тест-драйв автомобиля, чтобы убедиться в наличии проблемы.
- Проверьте уровень и состояние трансмиссионной жидкости. При низком уровне, долейте жидкость. Когда жидкость загрязнена, ее необходимо заменить.
- Если код ошибки не исчезнет, проверьте опорное напряжение и сигнал заземления датчика частоты вращения входного вала АКПП. А также целостность и сопротивление цепи датчика.
- Отремонтируйте или замените все поврежденные провода или цепи. Если с цепями и проводами все в порядке, проверьте все соответствующие датчики и электромагнитные клапаны.
Диагностика и решение проблем
Проверьте код ошибки P2767 в бюллетенях технического обслуживания (TSB) для вашего автомобиля. У вашей проблемы может быть исправление, выпущенное производителем, что может сэкономить время и деньги во время диагностики.
Начните диагностику с визуального осмотра системной проводки и разъемов. Поврежденную проводку, а также разъемы необходимо отремонтировать или заменить. Не забудьте проверить аккумулятор и осмотреть кабели, подключенные к нему, также проверьте мощность генератора.
Подключите сканер к диагностическому порту, извлеките все сохраненные коды для дальнейшего использования. Если присутствуют коды входного и выходного датчиков, определите, какая цепь неисправна.
Убедитесь, что на магнитных поверхностях датчиков нет чрезмерного количества металлического мусора. Для достижения наилучших результатов удалите лишний мусор перед повторной установкой. После снятия датчиков осмотрите также канавки и выемки на валу трансмиссии.
Используйте мультиметр для тестирования отдельных датчиков в соответствии со спецификациями производителя. Датчики, не соответствующие спецификациям, подлежат замене.
Перед проверкой сопротивления и непрерывности мультиметром, отключите соответствующие контроллеры. Несоблюдение этого правила может привести к отказу контроллера.
Обратите внимание на неисправность PCM или ошибку программирования PCM. Если все системные схемы и датчики находятся в надлежащем рабочем состоянии и соответствуют спецификациям производителя.
На каких автомобилях чаще встречается данная проблема
Проблема с кодом P2767 может встречаться на различных машинах, но всегда есть статистика, на каких марках эта ошибка присутствует чаще. Вот список некоторых из них:
- Chrysler (Крайслер 300)
- Daihatsu
- Dodge (Додж Чарджер)
- Ford (Форд Фокус)
- Honda
- Jeep (Джип Гранд Чероки, Коммандер)
- Lexus (Лексус nx200)
- Mazda
- Mercedes (Мерседес ml350)
- Toyota (Тойота Аурис, Витц, Королла, Рав4, Филдер)
- Volkswagen
С кодом неисправности Р2767 иногда можно встретить и другие ошибки. Наиболее часто встречаются следующие: P2765, P2766, P2768.
Видео
Всех приветствую.
За последний месяц второй раз коробка встала в аварию.
С очередного светофора начался разгон на 3 передаче, естественно натужно, на переключение
в ручную передачь, ответа не было, горел индикатор «D»
Остановился, прочитал ошибку, Р2767… после перезапуска двигателя, котобка опять поехала как обычно.
Заехав на яму, провел ревизию проводки, посмотрел состояние гнезда коробки, все чисто, не воды, не грязи, не окислов, не масла не обнаружено… значит менять плату гидро модуля, в которой и стоят датчики скорости.
Была закуплена плата с гнездом акпп, брал Febi 39482
За одно прокладку поддона, фильтр оригинал, и масло 5 литров мопаровского АТФ4+
Брал запчасти на синем форуме, менять поехал по наводке в гаражный сервис, не далеко от дома, куда человек и завез запчасти.
В замене нет ни каких подводных камней, так что процесс описывать нету смысла.
Благо, мастер отнесся к ремонту на совесть, все было промыто, продуто, протянуто.
Что странно, после замены платы ушли пинки коробки, который наблюдались последний месяц, со сменой масла не связываю, и старое было чистое. Может старые датчики подвирали.
Старая плата, от времени и температуры начала крошится, по словам мастера, стояла родная.
За 2 недели ошибка больше не вылетала.
Всем удачи на дорогах и вне их.
Бюджет 16400 запчасти + 5000 работа.
Цена вопроса: 21 400 ₽
Пробег: 205 100 км
Сегодня ремонтируем WK2 3.6 бензин 11 год пробег 172 тысячи. Проблема – неравномерная работа двигателя.
Компьютерная диагностика выдала ошибки P0300 и P0302. Первая — это пропуски зажигания в нескольких цилиндрах, и вторая — конкретно, во втором. Но компьютерная диагностика выдает не причину неисправности, как думают многие, а только направление для ее поиска. Поэтому сразу менять свечи и катушку зажигания мы не будем.
Пропуски зажигания могут являться следствием не только неисправности свечи или катушки. Неправильное смесеобразование тоже может выдавать ошибку по пропускам зажигания. Как и оказалось в нашем случае.
Снимаем впускной коллектор. Из коллектора вытекает масло вперемешку с бензином.
Теперь мы можем посмотреть, как работают клапана во втором цилиндре, по которому висит ошибка. Заглянем в окошко в головке блока цилиндров, и покрутим стартером. Как видно, один из впускных клапанов закрывается не полностью. Поршень в верхней мертвой точке до клапана не достает.
Откручиваем ваносы. Снимаем звездочки с распредвалов. Метки мы предварительно зафиксировали с помощью оригинального приспособления. (Номер 2000040377)
Снимаем распредвал впускных клапанов.
Чтобы после рассухаривания клапан не упал, подаем в цилиндр давление воздуха через свечной колодец.
Верхняя тарелка и сухари клапана легко снимаются без рассухаривателя. Они каким-то чудом не вылетели сами при работе двигателя. Если бы это произошло, клапан упал бы вниз и встретился бы с поршнем. Стержень клапана при этом загибается и клинит в направляющей. А тарелка клапана отрывается и встает враспор между головкой блока и поршнем. Вот такие случаи нам встречались. После этого если не весь мотор под замену, то половину точно.
А вот и причина неисправности – сломанная пружина клапана. Случается такое нечасто. Обычно эти пружины живут дольше, чем сам автомобиль.
Обломки пружины закрутило один в другой на несколько витков. Расстояние между витками в нижней части пружины меньше диаметра проволоки, из которой навита пружина. Поэтому обломки не смогли сразу закрутиться друг в друга до конца. Длины этой сборной пружины пока хватало для того, чтобы поднимать клапан выше верхней мертвой точки поршня. И это спасло двигатель.
Будем ставить новую пружину.
Заводим двигатель после ремонта. Работает ровно.
Ошибок нет.
Только чудо спасло владельца этого автомобиля от капремонта, а может и от замены двигателя. В такой ситуации лучше не рисковать и не пытаться доехать до сервиса своим ходом. Каждый оборот двигателя может оказаться для него последним.
На чтение 5 мин Просмотров 1.7к.
Рассмотрим подробнее
- Техническое описание и расшифровка ошибки P2767
- Симптомы неисправности
- Причины возникновения ошибки
- Как устранить или сбросить код неисправности P2767
- Диагностика и решение проблем
- На каких автомобилях чаще встречается данная проблема
- Видео
Код ошибки P2767 звучит как «нет сигнала цепи датчика «B» скорости вращения турбины (гидротрансформатора)». Часто, в программах, работающих со сканером OBD-2, название может иметь английское написание «Input/Turbine Speed Sensor «B» Circuit No Signal».
Этот диагностический код неисправности (DTC) является общим кодом силового агрегата. Ошибка P2767 считается общим кодом, поскольку применяется ко всем маркам и моделям транспортных средств. Хотя конкретные этапы ремонта могут несколько отличаться в зависимости от модели.
Код неисправности P2767 отображается, когда модуль управления трансмиссией (PCM) обнаруживает неисправность в цепи для турбинного датчика скорости, известного как «B». Обозначение «B» обычно зарезервировано для транспортных средств, оборудованных OBD-II, которые используют несколько датчиков скорости входа или турбины.
Входной датчик скорости турбины обычно представляет собой электромагнитный трехпроводной датчик. Используемый для контроля входной скорости передачи (распознается PCM как обороты в минуту).
Датчик расположен рядом с задней частью гидротрансформатора (на входном валу трансмиссии). Устанавливается либо с помощью болта, либо ввинчивается непосредственно в картер трансмиссии.
На главном валу трансмиссии имеются специальные канавки, которые проходят в непосредственной близости от конца датчика. Когда канавки проходят мимо датчика, цепь прерывается, и формируется электронный импульс. Этот импульс, принимается PCM как шаблон формы волны, который он опознает как входной сигнал скорость турбины.
Входная скорость турбины сравнивается со скоростью вращения двигателя, процентной нагрузкой двигателя и выходной скоростью трансмиссии. Делается это для определения желаемой входной скорости об/мин. Если фактическая скорость не совпадает с желаемой скоростью, код P2767 будет сохранен, и загорится лампа неисправности «Check engine».
Симптомы неисправности
Основным симптомом появления ошибки P2767 для водителя является подсветка MIL (индикатор неисправности). Также его называют Check engine или просто «горит чек».
Также они могут проявляться как:
- Загорится контрольная лампа «Check engine» на панели управления (код будет записан в память ECM как неисправность).
- Колебания показаний спидометра или одометра.
- Жесткое или неустойчивое переключение передач.
- Отказ АКПП переключиться.
- Повышенный расход топлива.
- Плавающие обороты двигателя, а также попытки заглохнуть.
- Глохнущий двигатель на холостом ходу.
- Возможны пропуски зажигания в цилиндрах двигателя. Также двигатель автомобиля может работать неустойчиво.
В некоторых случаях, когда присутствует этот код, PCM переводит коробку в «аварийный режим работы». В этом режиме трансмиссия начинает работать с ограничениями. Если при сообщении P2767 АКПП начинает переключаться нерегулярно, проблему с ошибкой следует немедленно устранить.
Причины возникновения ошибки
Код P2767 может означать, что произошла одна или несколько следующих проблем:
- Поврежденная проводка или разъемы.
- Неисправный датчик входной скорости.
- Неисправность датчика выходной скорости.
- Неисправность электромагнитного клапана переключения передач.
- Загрязнение трансмиссионной жидкости ATF.
- Низкий уровень трансмиссионной жидкости.
- Сбой PCM или ошибка программирования PCM.
Как устранить или сбросить код неисправности P2767
Некоторые предлагаемые шаги для устранения неполадок и исправления кода ошибки P2767:
- Подключите сканер OBD-II к автомобилю и считайте все присутствующие коды ошибок.
- Очистите коды и проведите тест-драйв автомобиля, чтобы убедиться в наличии проблемы.
- Проверьте уровень и состояние трансмиссионной жидкости. При низком уровне, долейте жидкость. Когда жидкость загрязнена, ее необходимо заменить.
- Если код ошибки не исчезнет, проверьте опорное напряжение и сигнал заземления датчика частоты вращения входного вала АКПП. А также целостность и сопротивление цепи датчика.
- Отремонтируйте или замените все поврежденные провода или цепи. Если с цепями и проводами все в порядке, проверьте все соответствующие датчики и электромагнитные клапаны.
Диагностика и решение проблем
Проверьте код ошибки P2767 в бюллетенях технического обслуживания (TSB) для вашего автомобиля. У вашей проблемы может быть исправление, выпущенное производителем, что может сэкономить время и деньги во время диагностики.
Начните диагностику с визуального осмотра системной проводки и разъемов. Поврежденную проводку, а также разъемы необходимо отремонтировать или заменить. Не забудьте проверить аккумулятор и осмотреть кабели, подключенные к нему, также проверьте мощность генератора.
Подключите сканер к диагностическому порту, извлеките все сохраненные коды для дальнейшего использования. Если присутствуют коды входного и выходного датчиков, определите, какая цепь неисправна.
Убедитесь, что на магнитных поверхностях датчиков нет чрезмерного количества металлического мусора. Для достижения наилучших результатов удалите лишний мусор перед повторной установкой. После снятия датчиков осмотрите также канавки и выемки на валу трансмиссии.
Используйте мультиметр для тестирования отдельных датчиков в соответствии со спецификациями производителя. Датчики, не соответствующие спецификациям, подлежат замене.
Перед проверкой сопротивления и непрерывности мультиметром, отключите соответствующие контроллеры. Несоблюдение этого правила может привести к отказу контроллера.
Обратите внимание на неисправность PCM или ошибку программирования PCM. Если все системные схемы и датчики находятся в надлежащем рабочем состоянии и соответствуют спецификациям производителя.
На каких автомобилях чаще встречается данная проблема
Проблема с кодом P2767 может встречаться на различных машинах, но всегда есть статистика, на каких марках эта ошибка присутствует чаще. Вот список некоторых из них:
- Chrysler (Крайслер 300)
- Daihatsu
- Dodge (Додж Чарджер)
- Ford (Форд Фокус)
- Honda
- Jeep (Джип Гранд Чероки, Коммандер)
- Lexus (Лексус nx200)
- Mazda
- Mercedes (Мерседес ml350)
- Toyota (Тойота Аурис, Витц, Королла, Рав4, Филдер)
- Volkswagen
С кодом неисправности Р2767 иногда можно встретить и другие ошибки. Наиболее часто встречаются следующие: P2765, P2766, P2768.
Видео
P2767 Нет сигнала в цепи датчика скорости B на входе / скорости турбины
Главная »Коды P2700-P2799» P2767
Код неисправности OBD-II Техническое описание
Нет сигнала в цепи датчика «B» скорости входа / турбины
Что это значит?
Этот диагностический код неисправности (DTC) является общим кодом трансмиссии, что означает, что он применяется ко всем автомобилям с 1996 года выпуска (Ford, Honda, Mazda, Mercedes, VW и т. Д.). Несмотря на общий характер, конкретные шаги по ремонту могут отличаться в зависимости от марки / модели.
Когда я сталкиваюсь с кодом неисправности P2767, это связано с тем, что модуль управления трансмиссией (PCM) не обнаружил выходного напряжения из цепи входного (или турбинного) датчика скорости, которому было присвоено обозначение «B». Датчики частоты вращения входного вала и турбины практически идентичны по конструкции и служат одной и той же цели, но производители используют различные термины для их описания.
Датчик частоты вращения на входе / турбине обычно представляет собой трехпроводной электромагнитный датчик, который используется для контроля скорости на входе коробки передач (определяемой PCM как число оборотов в минуту или число оборотов в минуту). Датчик обычно устанавливается с помощью болта / шпильки или ввинчивается непосредственно в картер трансмиссии. Обычно он расположен рядом с задней частью кожуха раструба (на входном валу трансмиссии).
Специально разработанные канавки (или зубчатое реактивное колесо) прочно прикреплены к главному (или входному) валу трансмиссии. Когда число оборотов передается от двигателя к трансмиссии, входной вал (или реактивное колесо) вращается и проходит в непосредственной близости от конца датчика. Стальной вал (или колесо реактора) замыкает электронную / электромагнитную цепь. Цепь прерывается, когда области с канавками (или надрезами) проходят мимо датчика, и формируется электронный рисунок. Это формирование рисунка принимается PCM как форма волны, которую он запрограммирован интерпретировать как входную мощность трансмиссии / скорость турбины.
Чтобы определить желаемую входную скорость об / мин, входная скорость трансмиссии / скорость турбины сравнивается со скоростью вращения двигателя, процентом нагрузки двигателя и выходной скоростью трансмиссии. Код P2767 будет сохранен (и может загореться лампа неисправности), если фактическая скорость входа / турбины или напряжение цепи системы не совпадают с желаемой скоростью входа / скорости турбины или напряжением, указанным производителем.
симптомы
P2767 указывает на полную потерю напряжения цепи датчика частоты вращения входного вала / турбины. Симптомы кода P2767 могут включать:
- Прерывистая или неустойчивая работа спидометра (одометра)
- Невозможность переключения передач вообще
- Неработающий спидометр и / или одометр
- Неустойчивые или резкие моменты переключения передач
- Снижение топливной экономичности
причины
Возможные причины установки этого кода:
- A неисправен датчик входной скорости B
- Поврежденная, ослабленная или закороченная проводка и / или разъемы в цепи
- Ошибка PCM или ошибка программирования PCM
Процедуры диагностики и ремонта
Хорошей отправной точкой всегда является проверка бюллетеней технического обслуживания (TSB) для вашего конкретного автомобиля. Ваша проблема может быть известной проблемой с известным исправлением, выпущенным производителем, и может сэкономить ваше время и деньги во время диагностики.
Руководство по обслуживанию производителя, расширенный диагностический сканер, цифровой вольт / омметр (DVOM) и, возможно, осциллограф будут полезны при диагностике кода P2767.
Опытные специалисты обычно начинают эту диагностику с визуального осмотра системной проводки и разъемов. Закороченные или разомкнутые цепи и / или разъемы необходимо отремонтировать или заменить, прежде чем продолжить. Осмотрите аккумулятор, кабели аккумулятора и концы кабелей. Сейчас я бы проверил мощность генератора.
Пришло время подключить сканер к диагностическому порту и получить все сохраненные коды. Запишите их для использования в будущем, а также запишите данные стоп-кадра.
Если присутствуют коды входного и выходного датчиков, используйте поток данных сканера, чтобы определить, какая цепь неисправна. Чтобы получить наиболее точные данные со сканера, сузьте поток данных, включив в него только относящуюся к делу информацию.
Чрезмерное количество металлического мусора на магнитных контактах входных и / или выходных датчиков скорости может вызвать сбои в работе датчика. При снятии датчика удалите излишки мусора с магнитных поверхностей перед повторной установкой. Когда датчики сняты, вы также захотите проверить прерывательные канавки и / или выемки реактивного колеса на наличие признаков повреждения или износа.
Вы можете использовать DVOM для проверки сопротивления отдельного датчика и напряжения цепи. Следуйте спецификациям производителя (указанным в руководстве по обслуживанию или в разделе «Все данные») и заменяйте датчики, которые не соответствуют спецификациям производителя.
Неспособность отключить связанные контроллеры до проверки сопротивления или непрерывности (с использованием DVOM) может привести к отказу контроллера.
Если сохраняется код P2767, а все системные цепи и датчики находятся в надлежащем рабочем состоянии и соответствуют спецификациям производителя, подозревают неисправный PCM или ошибку программирования PCM.
Дополнительные диагностические примечания:
- Если необходимо снять датчики входной и / или выходной скорости из коробки передач, будьте осторожны. Горячая трансмиссионная жидкость может вытечь из отверстия и обжечь кожу.
- Чрезмерное количество металлического мусора (притягиваемого к электромагнитному датчику) может вызвать ошибочные показания датчика скорости на входе / выходе.
- Убедитесь, что на монтажных поверхностях / резьбовых отверстиях нет мусора и препятствий, поскольку зазор между датчиком и реактором имеет решающее значение.
Связанные обсуждения DTC
- P2767 код 2007 Dodge Charger 5.7 с nag1Автомобиль перешел в постоянный вялый режим … код говорит, что это датчик скорости входного вала …. Дилер говорит, что это проводящая пластина, заглушка коробки передач …. Забавная вещь, это датчик скорости, проводящая пластина — это одна и та же деталь с большой разницей в цене, совершенно другой номер детали. … .Wtf никогда не видел этого… .Я купил…
Нужна дополнительная помощь с кодом p2767?
Если вам все еще нужна помощь по поводу кода неисправности P2767, задайте вопрос в комментариях под этой статьей..
ПРИМЕЧАНИЕ. Эта информация представлена только в информационных целях. Он не предназначен для использования в качестве рекомендаций по ремонту, и мы не несем ответственности за любые действия, которые вы предпринимаете с каким-либо автомобилем. Вся информация на этом сайте защищена авторским правом.
-
Автор темы
жека мудрый
- Ветром занесло
- Всего сообщений: 6
- Зарегистрирован: 09.02.2014
- Детей: 2
- Профессия: слесарь -сантехник
- Откуда: забайкальский край.г чита
- Авто: Toyota Voxy
- Возраст: 36
Вариатор. Ошибка P2767. ZRR7#
загорелся чек на вокси2008г че делать как запустить самодиагностику подскожите пожалуйста, весь интернет перерыл мануал не могу найти
-
Иваныч
- Пустил корни
- Всего сообщений: 1581
- Зарегистрирован: 02.12.2008
- Детей: 1
- Профессия: работы хватает
- Откуда: Сахалин — Брянск
- Авто: Тойота-VOXY 65 был(
- Возраст: 55
Re: Беда! загорелся чек вокси 2008г
Сообщение
Иваныч » 09 фев 2014, 07:36
Это лишнее, сканером в уважаемом сервисе за 300 руб все проверят
)))
Ниссан Дизель FE6-воровайка
-
RIMO
- Привык
- Всего сообщений: 236
- Зарегистрирован: 01.06.2012
- Детей: 1
- Профессия: АВТОЗАПЧАСТИ-продажа.
- Откуда: Озёрск
- Авто: Toyota Noah ZRR70G 2007года была
- Возраст: 43
Re: Беда! загорелся чек вокси 2008г
Сообщение
RIMO » 09 фев 2014, 08:41
жека мудрый:как запустить самодиагностику
В инете скатываешь книгу по ремонту ноах/вокси 60/65 кузов, и там написано про самодиагностику, через диагностический разъем. Я когда делал, при проблеме с АБС, все получилось. Сам сейчас не дома, добирусь, гляну.
-
Автор темы
жека мудрый
- Ветром занесло
- Всего сообщений: 6
- Зарегистрирован: 09.02.2014
- Детей: 2
- Профессия: слесарь -сантехник
- Откуда: забайкальский край.г чита
- Авто: Toyota Voxy
- Возраст: 36
Re: Беда! загорелся чек вокси 2008г
Сообщение
жека мудрый » 09 фев 2014, 13:15
у нас в деревне нет уважаемых сервисов, приходится самому диагностику производить так что буду в иннете искать!
Добавлено спустя 16 минут 27 секунд:
римо ты же сам знаешь что нет мануала в иннете на такой кузов зачем говоришь чтобы я скачал
-
Боб76
- Задержался
- Всего сообщений: 16
- Зарегистрирован: 05.12.2013
- Детей: 2
- Профессия: Управляющий «молнией» (сварщик)
- Откуда: Забайкальский край, Чита
- Авто: Toyota VOXI ZRR75 2008 4WD
- Возраст: 46
Re: Беда! загорелся чек вокси 2008г
Сообщение
Боб76 » 09 фев 2014, 15:49
Всем доброго. Не знаю как деревня называется. Но Чите знаю одного диагноста. Был у трех, он четвертый и решил проблему.
-
RIMO
- Привык
- Всего сообщений: 236
- Зарегистрирован: 01.06.2012
- Детей: 1
- Профессия: АВТОЗАПЧАСТИ-продажа.
- Откуда: Озёрск
- Авто: Toyota Noah ZRR70G 2007года была
- Возраст: 43
Re: Беда! загорелся чек вокси 2008г
Сообщение
RIMO » 09 фев 2014, 16:12
жека мудрый:ь что нет мануала в иннете на такой кузов зачем говоришь чтобы я скачал
Я же написал, не по нашему кузову, а по предыдущему ))). В мануале 60/65 кузов, на старнице 74 написано как запустить самодиагностику. По кодам, попробую поискать по нашему двигу.
За неимением, мануала по нашему кузову, частично чтото беру из этого ))). Т.Е. код можно считать, а вот расшифровку придется искать. Пару часов лазил, пытался найти мануал, по любому мотору Zr-fe, диагностику там не нашел . По идее, на моторах одной серии, т.е. ZR, должны быть одинаковые коды.
Вот еще что нашел по самодиагностике Тойота: коды ошибок здесь и в мануале совпадают, про что я и говорил.
Так что можешь глядеть, и по ошибке рыть дальше )))
УДАЧИ!
-
Автор темы
жека мудрый
- Ветром занесло
- Всего сообщений: 6
- Зарегистрирован: 09.02.2014
- Детей: 2
- Профессия: слесарь -сантехник
- Откуда: забайкальский край.г чита
- Авто: Toyota Voxy
- Возраст: 36
Re: Беда! загорелся чек вокси 2008г
Сообщение
жека мудрый » 10 фев 2014, 13:29
спасибо мужики за советы, я понял тебя римо, скачаю наверно книгу по старому вокси, я сегодня на диагностику ездил,выдало ошибку Р2767- нет сигнала входа/датчик числа оборотов турбины В, я сначала не понял че за турбина но потом нашли в иннете что у пацана такое было на вице, речь шла о вариаторе там видно какаято турбинка стоит. Он говорит что был плохо зацеплен контакт на датчике, а вот где теперь этот датчик искать незнаю! завтра буду смотреть проверять контакты на датчиках!может у кого- нибудь есть мануал подскажите где этот датчик расположен пожалуйста!ошибку- то когда убрали и чек погас!как только поехал набрал 30- 40 км чек загорелся снова!
-
RIMO
- Привык
- Всего сообщений: 236
- Зарегистрирован: 01.06.2012
- Детей: 1
- Профессия: АВТОЗАПЧАСТИ-продажа.
- Откуда: Озёрск
- Авто: Toyota Noah ZRR70G 2007года была
- Возраст: 43
Re: Беда! загорелся чек вокси 2008г
Сообщение
RIMO » 10 фев 2014, 14:08
жека мудрый:мануал подскажите где этот датчик расположен
Не знаю на счет турбины, но на самом варике всего 3 датчика оборотов — сверху. Проверь контакты у них у всех, может грязь попала или еще что.
4-й датчик снизу, это давления масла, тебе он не нужен .
PS. У меня была бадяга с датчиком АБС, разъем почистил, пробрызгал WD-40?, собрал и сбросил ошибку, после этого стало нормально.
-
Автор темы
жека мудрый
- Ветром занесло
- Всего сообщений: 6
- Зарегистрирован: 09.02.2014
- Детей: 2
- Профессия: слесарь -сантехник
- Откуда: забайкальский край.г чита
- Авто: Toyota Voxy
- Возраст: 36
Re: Беда! загорелся чек вокси 2008г
Сообщение
жека мудрый » 11 фев 2014, 05:31
спасибо! буду смотреть ! может че найду.
-
Автор темы
жека мудрый
- Ветром занесло
- Всего сообщений: 6
- Зарегистрирован: 09.02.2014
- Детей: 2
- Профессия: слесарь -сантехник
- Откуда: забайкальский край.г чита
- Авто: Toyota Voxy
- Возраст: 36
Re: Беда! загорелся чек вокси 2008г
Сообщение
жека мудрый » 28 мар 2014, 05:41
все окей , купил датчик , заменил ,чек сбросил ,завел поехал , чек не загорается,спасибо мужики за советы!!!
-
Ram_maR
- Модератор
- Всего сообщений: 1228
- Зарегистрирован: 13.03.2011
- Детей: 3
- Профессия: Гримёр в морге….
- Откуда: Томск
- Авто: Альф 3.0 … Рестайл …Чёткий Чёрный и лошадка Степа RF1
- Возраст: 35
Re: Беда! загорелся чек вокси 2008г
Сообщение
Ram_maR » 28 мар 2014, 11:39
жека мудрый, какой именно датчик менял?
Альф 3.0 на передке … Рестайл …Чёткий Чёрный
-
(ЕВ)гений
- Врос
- Всего сообщений: 527
- Зарегистрирован: 08.06.2012
- Детей: 1
- Профессия: театр Ермоловой
- Откуда: Москва
- Авто: toyota noah 3ZR-FE
- Возраст: 40
Re: Вариатор. Ошибка P2767. ZRR7#
Сообщение
(ЕВ)гений » 28 мар 2014, 21:16
Да да какой датчик? Лучше с номером и фото где находится.
Ром как у тебя с вариком?
903ноль134080
-
Ram_maR
- Модератор
- Всего сообщений: 1228
- Зарегистрирован: 13.03.2011
- Детей: 3
- Профессия: Гримёр в морге….
- Откуда: Томск
- Авто: Альф 3.0 … Рестайл …Чёткий Чёрный и лошадка Степа RF1
- Возраст: 35
Re: Вариатор. Ошибка P2767. ZRR7#
Сообщение
Ram_maR » 29 мар 2014, 05:53
(ЕВ)гений, норм всё если ты про разбитого вокси…С сереной воюю…
Альф 3.0 на передке … Рестайл …Чёткий Чёрный
-
владимир37
- Привыкаю
- Всего сообщений: 67
- Зарегистрирован: 12.08.2012
- Детей: 1
- Профессия: менеджер
- Откуда: екатеринбург
- Авто: VOXY 2011 ZRR70 2WD
- Возраст: 47
Re: Вариатор. Ошибка P2767. ZRR7#
Сообщение
владимир37 » 01 апр 2014, 17:47
ремонтировали вариатор не включаеться паркинг! что может быть?
-
Ram_maR
- Модератор
- Всего сообщений: 1228
- Зарегистрирован: 13.03.2011
- Детей: 3
- Профессия: Гримёр в морге….
- Откуда: Томск
- Авто: Альф 3.0 … Рестайл …Чёткий Чёрный и лошадка Степа RF1
- Возраст: 35
Re: Вариатор. Ошибка P2767. ZRR7#
Сообщение
Ram_maR » 01 апр 2014, 19:02
владимир37:не включаеться паркинг
Точнее можно… ручка кпп не доходит до Р. Или ставишь на Р а машина катиться…
Добавлено спустя 26 секунд:
А что с вариком было?
Альф 3.0 на передке … Рестайл …Чёткий Чёрный
Код ошибки P2767 говорит о следующей проблеме: «нет сигнала цепи датчика «B» скорости вращения турбины (гидротрансформатора)». При работе с диагностическим сканером OBD-2, английское название выглядит так «Input/Turbine Speed Sensor «B» Circuit No Signal».
Данный диагностический код неисправности (DTC) является общим кодом для силового агрегата. Ошибка P2767 является общим кодом ошибки в диагностики всех транспортных средств в соответствии с общепринятым стандартом. Итоговые шаги по устранению неисправности могут отличаться в зависимости от марки и модели автомобиля.
Код неисправности P2767 отображается, когда модуль управления трансмиссией (PCM) обнаруживает неисправность в цепи для турбинного датчика скорости, известного как «B». Обозначение «B» обычно зарезервировано для транспортных средств, оборудованных OBD-II, которые используют несколько датчиков скорости входа или турбины.
Входной датчик скорости турбины обычно представляет собой электромагнитный трехпроводной датчик. Используемый для контроля входной скорости передачи (распознается PCM как обороты в минуту).
Датчик расположен рядом с задней частью гидротрансформатора (на входном валу трансмиссии). Устанавливается либо с помощью болта, либо ввинчивается непосредственно в картер трансмиссии.
На главном валу трансмиссии имеются специальные канавки, которые проходят в непосредственной близости от конца датчика. Когда канавки проходят мимо датчика, цепь прерывается, и формируется электронный импульс. Этот импульс, принимается PCM как шаблон формы волны, который он опознает как входной сигнал скорость турбины.
Входная скорость турбины сравнивается со скоростью вращения двигателя, процентной нагрузкой двигателя и выходной скоростью трансмиссии. Делается это для определения желаемой входной скорости об/мин. Если фактическая скорость не совпадает с желаемой скоростью, код P2767 будет сохранен, и загорится лампа неисправности «Check Engine».
Признаки неисправности
Главным признаком наличия ошибки P2767 является загорание лампы аварийной сигнализации автомобиля MIL (malfunction indicator lamp) или также известная как лампа Check Engine — чек энджин.
Также они могут проявляться как:
- Загорится контрольная лампа «Check Engine» на панели управления (код будет записан в память ECM как неисправность).
- Колебания показаний спидометра или одометра.
- Жесткое или неустойчивое переключение передач.
- Отказ АКПП переключиться.
- Увеличенный расход топлива.
- Плавающие обороты двигателя, а также попытки заглохнуть.
- Глохнущий двигатель на холостом ходу.
- Возможны пропуски зажигания в цилиндрах двигателя. Также двигатель автомобиля может работать неустойчиво.
В некоторых случаях, когда присутствует этот код, PCM переводит коробку в «аварийный режим работы». В этом режиме трансмиссия начинает работать с ограничениями. Если при сообщении P2767 АКПП начинает переключаться нерегулярно, проблему с ошибкой следует немедленно устранить.
Причины появления ошибки
Код P2767 может означать, что произошла одна или несколько следующих проблем:
- Поврежденная проводка или разъемы.
- Неисправный датчик входной скорости.
- Неисправность датчика выходной скорости.
- Неисправность электромагнитного клапана переключения передач.
- Загрязнение трансмиссионной жидкости ATF.
- Низкий уровень трансмиссионной жидкости.
- Сбой PCM или ошибка программирования PCM.
Устранение и сброс кода неисправности P2767
Возможные шаги по устранению неполадок вызывающих появление кода ошибки P2767:
- Подключите сканер OBD-II к автомобилю и считайте все присутствующие коды ошибок.
- Очистите коды и проведите тест-драйв автомобиля, чтобы убедиться в наличии проблемы.
- Проверьте уровень и состояние трансмиссионной жидкости. При низком уровне, долейте жидкость. Когда жидкость загрязнена, ее необходимо заменить.
- Если код ошибки не исчезнет, проверьте опорное напряжение и сигнал заземления датчика частоты вращения входного вала АКПП. А также целостность и сопротивление цепи датчика.
- Отремонтируйте или замените все поврежденные провода или цепи. Если с цепями и проводами все в порядке, проверьте все соответствующие датчики и электромагнитные клапаны.
Диагностика и устранение неисправности
Проверьте код ошибки P2767 в бюллетенях технического обслуживания (TSB) для вашего автомобиля. У вашей проблемы может быть исправление, выпущенное производителем, что может сэкономить время и деньги во время диагностики.
Начните диагностику с визуального осмотра системной проводки и разъемов. Поврежденную проводку, а также разъемы необходимо отремонтировать или заменить. Не забудьте проверить аккумулятор и осмотреть кабели, подключенные к нему, также проверьте мощность генератора.
Подключите сканер к диагностическому порту, извлеките все сохраненные коды для дальнейшего использования. Если присутствуют коды входного и выходного датчиков, определите, какая цепь неисправна.
Убедитесь, что на магнитных поверхностях датчиков нет чрезмерного количества металлического мусора. Для достижения наилучших результатов удалите лишний мусор перед повторной установкой. После снятия датчиков осмотрите также канавки и выемки на валу трансмиссии.
Используйте мультиметр для тестирования отдельных датчиков в соответствии со спецификациями производителя. Датчики, не соответствующие спецификациям, подлежат замене.
Перед проверкой сопротивления и непрерывности мультиметром, отключите соответствующие контроллеры. Несоблюдение этого правила может привести к отказу контроллера.
Обратите внимание на неисправность PCM или ошибку программирования PCM. Если все системные схемы и датчики находятся в надлежащем рабочем состоянии и соответствуют спецификациям производителя.
На каких автомобилях чаще встречается данная проблема
Проблема с кодом P2767 может встречаться на различных машинах, но всегда есть статистика, на каких марках эта ошибка присутствует чаще. Вот список некоторых из них:
- Chrysler (Крайслер 300)
- Daihatsu
- Dodge (Додж Чарджер)
- Ford (Форд Фокус)
- Honda
- Jeep (Джип Гранд Чероки, Коммандер)
- Lexus (Лексус nx200)
- Mazda
- Mercedes (Мерседес ml350)
- Toyota (Тойота Аурис, Витц, Королла, Рав4, Филдер)
- Volkswagen
С кодом неисправности Р2767 иногда можно встретить и другие ошибки. Наиболее часто встречаются следующие: P2765, P2766, P2768.
Расшифровка ошибки P2767 у Jeep: Низкий уровень сигнала в цепи датчика 4 положения педали тормоза
Марка:
Джип
Код:
P2767
Определение:
Низкий уровень сигнала в цепи датчика 4 положения педали тормоза
Описание:
Зажигание включено. Напряжение зажигания больше 10 В.
Причина:
- C0277 03, C129A или C129D
- EBCM обнаруживает напряжение ниже порогового значения в сигнальной цепи.
Опрос: Где ремонтируется Ваш автомобиль? (Кол-во голосов: 2667)
У себя в гараже
У официалов
В гараже у Васи
Чтобы проголосовать, кликните на нужный вариант ответа.Результаты
From english:
Decoding the error P2767 from Jeep: Brake Pedal Position Sensor 4 Circuit Low
Make:
Jeep
Code:
P2767
Definition:
Brake Pedal Position Sensor 4 Circuit Low
Description:
Ignition ON.Ignition voltage is greater than 10 V.
Cause:
- C0277 03, C129A,or C129D
- The EBCM detects voltage below threshold on signal circuit.
Еще ошибки категории
Ошибки автомобилей разных произвродителей
Опрос: Смогли ли диагностировать неисправность? (Кол-во голосов: 444)
Да, лично
Да, с помощью знакомого
Да, у официального дилера
Нет
Чтобы проголосовать, кликните на нужный вариант ответа.Результаты
Расскажите друзьям:
Поставьте рейтинг, для нас это очень важно:
Голосов: 0 чел. Рейтинг: 0 из 5.
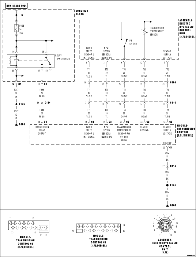
For a complete wiring diagram Refer to Section 8W
Theory of Operation
The Input Speed Sensor 2 (N3) is one of two hall effect speed sensors that are used by the Transmission Control Module (TCM) to calculate the transmissions turbine speed. Since the turbine
speed could not be measured directly, two of the drive elements are measured. Two input speed sensors are required because both elements are not active in all gears.
- When Monitored:
Engine speed greater than 450 RPM with none of the following DTCs present: engine speed, TCM undervoltage, output speed sensor, and/or rear wheel speed DTCs. Also required are all wheel speeds above
250 RPM and no wheel slip detected (signal from the ABS system). - Set Condition:
If the Input Speed Sensor 2 (N3) signal is equal to 0 RPM.
| Possible Causes |
| (T72) SENSOR SUPPLY VOLTAGE CIRCUIT OPEN |
| (T71) INPUT SPEED SENSOR 2 (N3) SIGNAL CIRCUIT OPEN |
| (T71) SPEED SENSOR 2 (N3) SIGNAL CIRCUIT SHORT TO ANOTHER CIRCUIT |
| (T13) SENSOR GROUND CIRCUIT OPEN |
| (T13) SENSOR GROUND CIRCUIT SHORT TO ANOTHER CIRCUIT |
| (T71) SPEED SENSOR 2 (N3) SIGNAL CIRCUIT SHORT TO GROUND |
| (T13) SENSOR GROUND CIRCUIT SHORT TO GROUND |
| INPUT SPEED SENSOR 2 (N3) |
| TRANSMISSION CONTROL MODULE |
Always perform the Pre-Diagnostic Troubleshooting procedure before proceeding.
(Refer to 21 — TRANSMISSION/TRANSAXLE/AUTOMATIC
— NAG1 — STANDARD PROCEDURE)
Diagnostic Test
1.CHECK IF DTC IS CURRENT
NOTE:
The Transmission Control Module stores under Environmental Data the transmission operating conditions when the DTC was set. Before erasure of any DTC, record all information
pertaining to the DTC, even if there is more than one DTC stored.
Did the DTC P2767 reset?
Yes
- Go To 2
No
- Go To 10
2.CHECK THE (T72) SENSOR SUPPLY VOLTAGE CIRCUIT FOR AN OPEN
NOTE:
Check connectors — Clean/repair as necessary.
Is the resistance above 5.0 ohms?
Yes
- Repair the (T72) Sensor Supply Voltage circuit for an open.
- Perform NAG1 TRANSMISSION VERIFICATION TEST.
(Refer to 21 — TRANSMISSION/TRANSAXLE/AUTOMATIC — NAG1 — STANDARD PROCEDURE)
No
- Go To 3
3.CHECK THE (T71) INPUT SPEED SENSOR 2 (N3) SIGNAL CIRCUIT FOR AN OPEN
Is the resistance above 5.0 ohms?
Yes
- Repair the (T71) Input Speed Sensor 2 (N3) Signal circuit for an open.
- Perform NAG1 TRANSMISSION VERIFICATION TEST.
(Refer to 21 — TRANSMISSION/TRANSAXLE/AUTOMATIC — NAG1 — STANDARD PROCEDURE)
No
- Go To 4
4.CHECK THE (T13) SENSOR GROUND CIRCUIT FOR AN OPEN
Is the resistance above 5.0 ohms?
Yes
- Repair the (T13) Sensor Ground circuit for an open.
- Perform NAG1 TRANSMISSION VERIFICATION TEST.
(Refer to 21 — TRANSMISSION/TRANSAXLE/AUTOMATIC — NAG1 — STANDARD PROCEDURE)
No
- Go To 5
5.CHECK THE (T71) INPUT SPEED SENSOR 2 (N3) SIGNAL CIRCUIT FOR A SHORT TO ANOTHER CIRCUIT(S)
Is the resistance below 5.0 ohms between the (T71) Input Speed Sensor 2 (N3) Signal circuit and any other circuit(s) in the Electrohydraulic Control Unit Assembly harness connector?
Yes
- Repair the (T71) Input Speed Sensor 2 (N3) Signal circuit for a short to another circuit(s).
- Perform NAG1 TRANSMISSION VERIFICATION TEST.
(Refer to 21 — TRANSMISSION/TRANSAXLE/AUTOMATIC — NAG1 — STANDARD PROCEDURE)
No
- Go To 6
6.CHECK THE (T71) INPUT SPEED SENSOR 2 (N3) SIGNAL CIRCUIT FOR A SHORT TO GROUND
Is the resistance below 5.0 ohms?
Yes
- Repair the (T71) Input Speed Sensor 2 (N3) Signal circuit for a short to ground.
- Perform NAG1 TRANSMISSION VERIFICATION TEST.
(Refer to 21 — TRANSMISSION/TRANSAXLE/AUTOMATIC — NAG1 — STANDARD PROCEDURE)
No
- Go To 7
7.CHECK THE (T13) SENSOR GROUND CIRCUIT FOR A SHORT TO ANOTHER CIRCUIT(S)
Is the resistance below 5.0 ohms between the (T13) Sensor Ground circuit and any other circuit(s) in the Electrohydraulic Control Unit Assembly harness connector.
Yes
- Repair the (T13) Sensor Ground circuit for a short to another circuit(s)
- Perform NAG1 TRANSMISSION VERIFICATION TEST.
(Refer to 21 — TRANSMISSION/TRANSAXLE/AUTOMATIC — NAG1 — STANDARD PROCEDURE)
No
- Go To 8
8.CHECK THE (T13) SENSOR GROUND CIRCUIT FOR A SHORT TO GROUND
Is the resistance below 5.0 ohms?
Yes
- Repair the (T13) Sensor Ground circuit for a short to ground.
- Perform NAG1 TRANSMISSION VERIFICATION TEST.
(Refer to 21 — TRANSMISSION/TRANSAXLE/AUTOMATIC — NAG1 — STANDARD PROCEDURE)
No
- Go To 9
9.CHECK THE INPUT SPEED SENSOR 2 (N3) SIGNAL
WARNING:
Properly support the vehicle.
WARNING:
To avoid personal injury or death, keep hands and feet clear of rotating wheels.
Is the scope pattern comparable to the typical 5-volt square wave signal scope pattern?
Yes
- Using the schematics as a guide, check the Transmission Control Module (TCM) pins, terminals, and connectors for corrosion, damage, or terminal push out. Pay
particular attention to all power and ground circuits. If no problems are found, replace the TCM per the Service Information.(Refer to 8 —
ELECTRICAL/ELECTRONIC CONTROL MODULES/TRANSMISSION CONTROL MODULE — REMOVAL) - Perform NAG1 TRANSMISSION VERIFICATION TEST.
(Refer to 21 — TRANSMISSION/TRANSAXLE/AUTOMATIC — NAG1 — STANDARD PROCEDURE)
No
- Replace the Input Speed Sensor 2 (N3). Refer to 21- AUTOMATIC TRANSMISSION-AUTOMATIC TRANSMISSION NAG1/SERVICE INFORMATION for the appropriate service procedure.
- Perform NAG1 TRANSMISSION VERIFICATION TEST.
(Refer to 21 — TRANSMISSION/TRANSAXLE/AUTOMATIC — NAG1 — STANDARD PROCEDURE)
10.INTERMITTENT WIRING AND CONNECTORS
Were there any problems found?
Yes
- Repair as necessary.
- Perform NAG1 TRANSMISSION VERIFICATION TEST.
(Refer to 21 — TRANSMISSION/TRANSAXLE/AUTOMATIC — NAG1 — STANDARD PROCEDURE)
No
- Test Complete.
















